Sold $1,170,000
2/5 Temple Street, VICTORIA PARK
Video Link
ANOTHER UNDER OFFER!
Located on the highly regarded Temple Street this stunning street-front three bedroom two bathroom townhouse perfectly blends modern living with comfort and style.
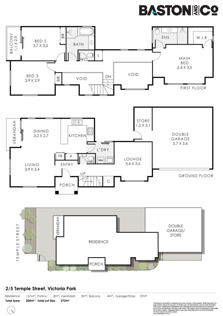
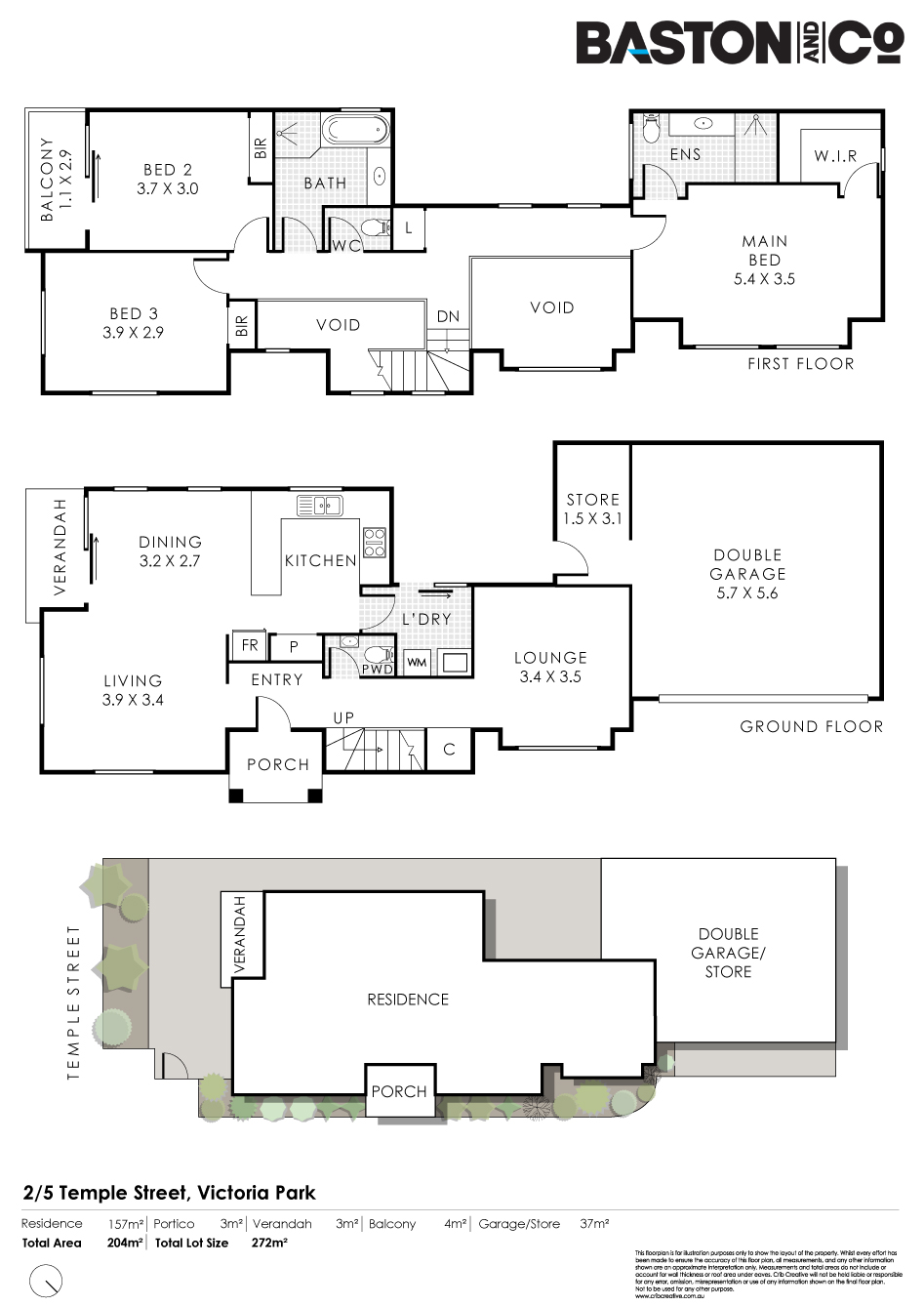
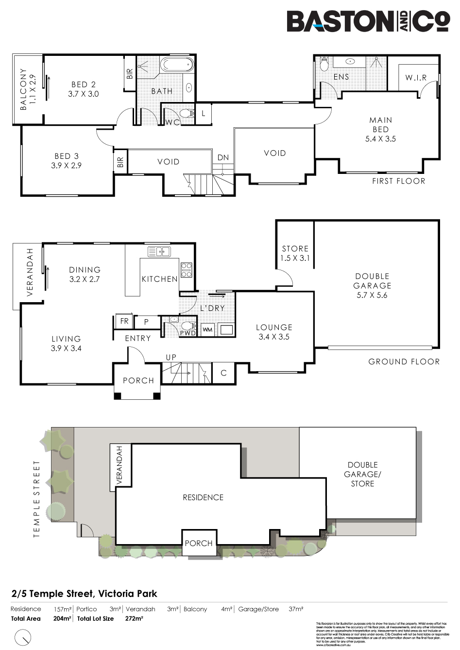
This beautifully constructed red brick home, built in 2004, offers a generous 160m2 of living space across two levels, plus double lock up garaging.
As you step inside, you will be greeted by a warm and inviting interior, featuring a combination of practical terracotta styled tiling and wood-look hard wearing laminate flooring, both adding a warm and a relaxing touch to the home.
The spacious open plan living room is perfect for relaxation, while the adjacent dining space provides an ideal setting for everyday meals and entertaining guests.
Opening directly to the leafy private front courtyard, you’ll love shady afternoon BBQs in summer.
A second living room with double over-height ceiling and dramatic full length sheer curtains provides a cosy escape from the rest of the home.
The well-appointed kitchen is equipped with modern appliances, engineered stone benchtops, plenty of storage ( including a large double door pantry), breakfast bar and oodles of bench space, making cooking a delight.
The conveniently located full sized laundry, situated right next to the kitchen, opens directly to a private rear service courtyard.
The home boasts three generous bedrooms, providing ample space for everyone.
The expansive main suite includes an ensuite bathroom and walk in robe, providing privacy and convenience.
Both the second and third bedrooms feature built in robes (bedroom two also has its own balcony!).
With a total of two bathrooms and three toilets (including a super practical downstairs powder room), this property is designed for functionality and ease.
An automatic double garage offers secure parking and extra storage space.
Don’t miss the opportunity to own this exceptional home in Victoria Park, offered at a price guide in the LOW millions.
• NBN FTTP
• Ducted evaporative and reverse cycle split system air conditioning
• Small group of 5 homes
• Storage workshop space adjacent to garage
• Fully fenced yard (perfect for pets and kids)
• Mature garden
Locations matters.
Just a short stroll to regular public transport, securely in the Victoria Park Primary School zone and only metres from Perth’s most popular restaurant and foodie strip, this home is situated with lifestyle in mind!
Don’t miss your chance to inspect.
Council Rates: $2,418.16 2025/26
Water Rates: $1,259.83 2024/25
Strata Levies: $450/q
Land: Property Features
- House
- 3 bed
- 2 bath
- 2 Parking Spaces
- Land size 182 m²
- Floor Area is 194 m²
- 2 Garage
- House
- 3 bed
- 2 bath
- 2 Parking Spaces
- Land size 182 m²
- Floor Area is 194 m²
- 2 Garage





















































