MID Millions
25A Geddes Street, VICTORIA PARK
Video Link
Classic
Built in 2000 with owner since new, this beautiful architecturally designed home will surprise you with its versatile floor plan.
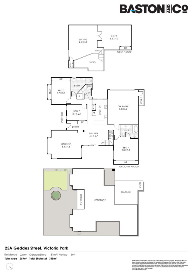
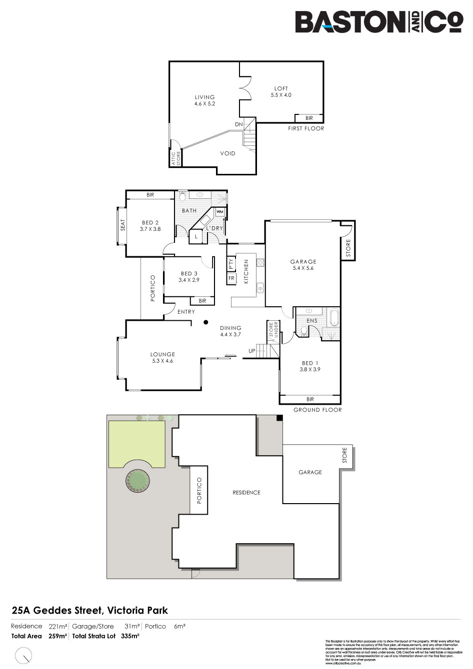
Originally built as a 3 bedroom 2 bathroom home, with second living area upstairs, and a large roof-space conversion that provides the possibility of a 4th bedroom, if ever required.
Classics never go out of fashion.
And so it is with 25A Geddes Street.
Perfectly located and immaculately presented.
With strong references to 1900s Federation styling, this brick and tile home sits on a street-front 304m2 block, in the sought after riverside Raphael Park precinct of Victoria Park.
A bold triple-gabled roof and terracotta roof tiles provide a statement of permanence and solidity.
Behind the white picket and red brick pier fence, a private and leafy front yard boasts space to entertain.
Room for friends, pets and kids.
A double height entrance and quality parquetry hardwood timber floors greet you as you step inside the home.
The home cleverly provides space and light throughout its living areas.
At the front of the home, the main lounge boasts a deep bay window with plantation shutters.
This living room connects easily to the open plan dining, kitchen and the paved undercover alfresco entertaining.
Upstairs a large mezzanine level second living space, with a gentle curve to its balustraded edge, velux roof windows, a vaulted ceiling provide airy and light filled drama to this gorgeously executed home.
The kitchen is at the heart of the home.
Timelessly understated, recently renovated, this functional kitchen boasts modern appliances (including an integrated dishwasher 900mm freestanding cooker), plenty of storage and oodles of bench space.
Cook up a storm or enjoy a morning coffee.
The expansive main bedroom is separated conveniently to the rear of the home on the ground floor.
With its own ensuite (including a bath for those well deserved soaks), a bank of built in robes and sheer curtains, providing both light and privacy.
At the front of the home two more bedrooms provide the balance of the ground floor accommodation.
Both have built in storage and have the use of a second bathroom (and second WC).
The bigger of the two bedrooms is opulently proportioned and features another bay window, complete with window seat.
Curl up cosy with a book and watch the winter weather outside the window.
Upstairs beyond the large mezzanine living area, double doors open to a surprising room.
Strictly speaking this is just a very grand entrance to the roof space.
Carpeted, with built in robes and reverse cycle air conditioning, with vaulted ceilings I think you can see the potential!
Used over the years as an office, studio, storage, emergency guest bedroom and playroom, this extra space is a real surprise and you are bound to have a use for it.
Practical.
The full sized laundry opens to its own service courtyard.
You’ll also love the big double garage, with secure pedestrian access directly to the home, and lockable storeroom.
Location matters.
Just a stroll to the Swan River, McCallum Park, the vibrant Vic Park foodie strip and within easy access of regular public transport.
On the edge of the city, and yet a world away.
Vic Park has been declared one of Perth’s most walkable suburbs.
With nearby schools, shopping and a plethora of parks this really is a fantastic location.
This is the best of easy no fuss, lock and leave inner city living, with all the amenity of a modern larger home.
There is a lot to love and inspection is sure to impress.
Council Rates: $2,901.80 2025/26
Water Rates: $1,430.20 2024/25
Strata Levies: $330/q
Land: Property Features
- House
- 4 bed
- 2 bath
- 2 Parking Spaces
- Land size 304 m²
- Floor Area is 221 m²
- Ensuite
- 2 Garage
- House
- 4 bed
- 2 bath
- 2 Parking Spaces
- Land size 304 m²
- Floor Area is 221 m²
- Ensuite
- 2 Garage





































































