OFFERS

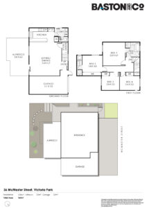
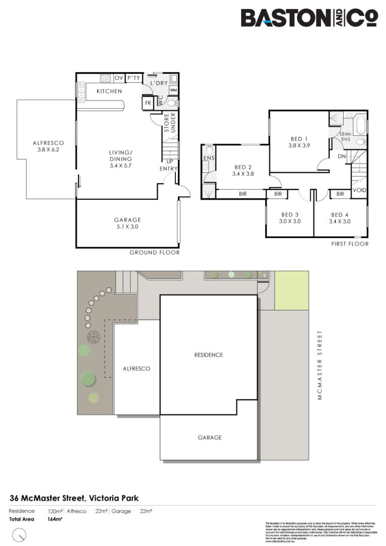
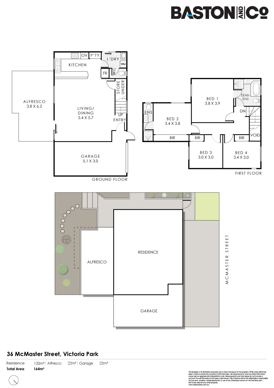
36 McMaster Street, VICTORIA PARK

Land Size: 193 sqm
Video Link

Bang For Your Buck!

To steal a line from TikTok famous Justin Merendino, “brick and tile will make you smile”.

They simply don’t build this sort of solid double storey construction any more.

The best value 4 bedroom 2 bathroom home in Victoria Park!
It’s big call, but 36 McMaster Street ticks a lot of boxes.

Solidly built in the early 1990s from brick and tile construction and eventually extended (by a previous owner) to include an additional upstairs bedroom and ensuite this home boasts plenty of amenity and accommodation.

Downstairs a large open plan light filled living/dining and kitchen provides for easy modern living.
Opening directly to the undercover paved alfresco entertaining this really is ready for you to move into today.

The large kitchen features plenty of storage and acres of bench space.
Ready to cook up a storm, or make just tea and toast on a Sunday morning.
Adjacent to the laundry, I can sense a future butler’s pantry renovation….

Upstairs the home boasts a large main bedroom, big enough for a King sized bed should you choose.
With the convenience a semi -ensuite bathroom complete with shower, bath and toilet.

There is another “main” bedroom, a second storey extension to the original home this room has its own dedicated ensuite and features plenty of practical built in storage.

Two more bedrooms both with built in robes complete the accommodation on offer.

New carpet upstairs and fresh paint really ensure this home is move in ready.

• Auto single lock up garage
• Split system air-conditioning (3 in total) and ducted evaporative (upstairs)
• NBN (FTTP)
• Understairs storage
• Secure gated access to the front door
• Additional hardstand in front of the home for parking off street

We all know location really matters!
36 McMaster Street has you covered.
Walking distance to one of Perth’s most popular public primary schools, a short stroll to the vibrant Vic Park foodie and café strip, around the corner from regular public transport, a bike ride to the City, Optus Stadium and the Swan River.
You won’t be worrying about petrol prices!

Inspection is a must, offering so much value, this is the one you have been waiting for.

Just add your personal touches and move in!

Council – $2,773.50 2025/26
Water – $1,279.88 2024/25
Note this is a street front home in a two lot strata titled scheme with no common property and no common outgoings.
There are no annual strata meetings and no strata bank account or monies held.

Land:
Property Features
  • House
  • 4 bed
  • 2 bath
  • 1 Parking Spaces
  • Land size 193 m²
  • Floor Area is 120 m²
  • 2 Ensuite
  • Garage
  • Open Parking Spaces
Lee and Derek Baston 2024

Contact Baston and Co.

Lee and Derek Baston | 0417 99 23 24
Scroll to Top

Contact Baston & Co. Property